Providing full-cycle services from demand analysis to operation & maintenance management. Through standardized, professional, and intelligent industrial control EPC (Engineering, Procurement, Construction) services, we aim to enhance production efficiency, improve quality consistency, reduce safety risks and optimize resource utilizationThis project establishes a foundation for the client’s digital transformation and sustainable development, integrating advanced automation and smart control solutions.






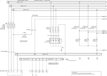
We offer PLC/DCS/SCADA system architecture planning, control logic development, and electromechanical integration solutions, while also covering the design of electromechanical engineering construction drawings, including electrical wiring diagrams, cable tray layouts, detailed equipment installation drawings, and automation commissioning interface design.
Based on tools such as AutoCAD Electrical, EPLAN, and Revit MEP, combined with 3D collaborative design and construction feasibility validation, we strictly adhere to IEC/ISO standards, assisting clients in the manufacturing, energy, and non-ferrous metals and other industries in achieving full-process standardization and intelligent upgrades, from control system optimization to the implementation of electromechanical engineering.
It covers the integration and assembly of MCC cabinets, PLC/DCS control cabinets, low-voltage switchgear, power distribution cabinets, and non-standard customized system control cabinets, including equipment selection design, sheet metal processing and customization, modular assembly, industrial-grade wiring, and system commissioning and testing.
Relying on standardized production processes and in compliance with IEC/ISO standards, we provide one-stop services from electrical control cabinet structural design, component integration optimization, to in-house FAT testing, ensuring that the equipment performance matches the automation system requirements and facilitating efficient and reliable implementation in industrial scenarios.





