涵盖了从需求分析到运维管理的全周期服务,旨在通过标准化、专业化、智能化的工业控制工程总包服务,实现企业生产效率提升、质量稳定性增强、安全风险降低及资源利用优化;为企业的数字化升级和可持续发展奠定基础。






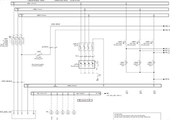
提供PLC/DCS/SCADA系统架构规划、控制逻辑开发及机电一体化集成方案,同步涵盖机电工程施工图设计,包括电气配线图、桥架布置、设备安装详图及自动化联调接口设计。
基于AutoCAD Electrical、EPLAN、Revit MEP等工具,结合三维协同设计与施工可行性验证,严格遵循IEC/ISO标准,助力制造业、能源及有色金属等行业客户实现从控制系统优化到机电工程落地的全流程标准化、智能化升级。





